Vente Appartement LE MANS m² - Sarthe Habitat
[com] espace maLoc
Logo ma loc
[com] Nos agences
[ins] Nous rejoindre
[com] Recherche (bouton)

-

[com] Contact
Téléphone
Recherche
Type de bien
Appartement
Typologie
T4
Prix de vente
Commune
LE MANS
Référence du bien
09930002A

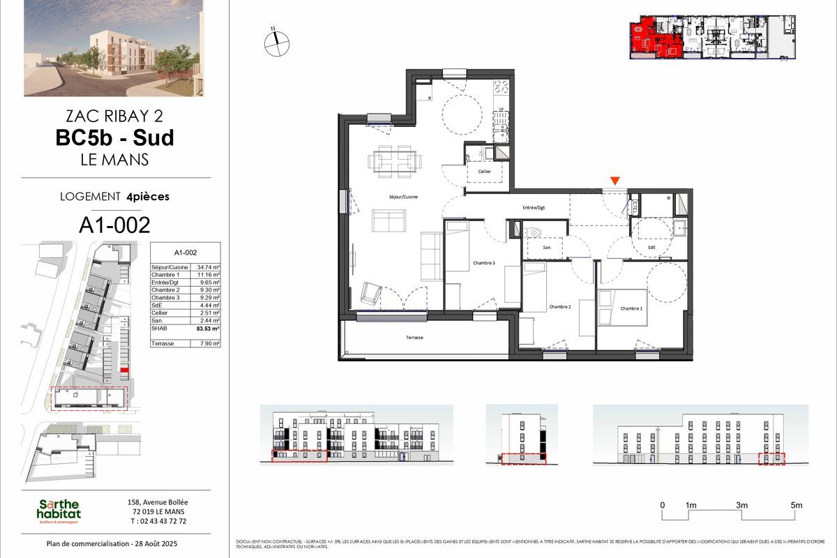
LE MANS - QUARTIER UNIVERSITE - Appartement de type 4 de 83 m² avec terrasse et parking

Acheter avec Sarthe habitat : les avantages
  • Garanties : rachat et relogement
  • Pas de frais d'agence

Descriptif du logement

Dans un quartier dynamique et proche de toutes commodités, nous vous invitons à devenir propriétaire, dans un petit collectif, constitué de 13 appartements neufs du T3 au T4 avec balcon/terrasse, parking aérien, chauffage individuel gaz. Nous vous proposons à la vente un logement de 4 pièces de 83 m2 avec une très belle terrasse ensoleillée de plain-pied. Un parking extérieur. Faibles charges. Prix : 227 000 € Frais de notaire réduits Pas de frais d'agence Eligible au prêt à taux zéro Location durant 6 mois avant de devenir propriétaire. Exonération de la taxe foncière pendant 15 ans sur le bâti (éligibilité sous condition de ressource et de dossier).
Les offres d'achat devront être déposées avant le 31/12/2025 sous réserve d'une visite du logement avec le service accession de Sarthe habitat.
Modalités de vente des logements sociaux voir Décret n° 2019-1183 du 15-11-2019

Détails

  • Année de construction : 2025
  • Typologie : T4
  • Type de chauffage : Individuel

Avantages

Équipement et données importantes

Les énergies

Consommations énergétiques

Logement économe
  1. ≤50
  2. 51 à 90
  3. 91 à 150
  4. 151 à 230
  5. 231 à 330
  6. 331 à 450
  7. >450
  8. 70
    kWh/m²/an
Logement énergivore

Émissions de gaz à effet de serre

Faibles émissions de GES
  1. ≤5
  2. 6 à 10
  3. 11 à 20
  4. 21 à 35
  5. 36 à 55
  6. 56 à 80
  7. >80
  8. 6
    kg/m²/an
Fortes émissions de GES
Montant estimé des dépenses annuelles d’énergie pour un usage standard : entre et en / DPE ANCIENNE VERSION

Ce bien vous intéresse ?

Contactez vite l’agence pour le visiter !

Formulaire agence

Image + Texte de l\'agence
0004_montval-sur-loir__01
Agence Accession
8 bis rue d’Alger 72 000 Le Mans
Horaires d’ouverture :
Du lundi au vendredi de 9h30 à
12h30 et de 14h00 à 18h00

Partenaire(s)

Sarthe habitat vous accompagne dans votre projet d'achat immobilier

Sarthe habitat souhaite faciliter votre projet d'achat immobilier en Sarthe. Les agences du bailleur social vous proposent des annonces exclusives dans votre ville. Trois types de biens immobiliers sont à la vente : logement ancien, maison en location-accession ou terrain à construire. Et pour transformer votre parcours d’achat en expérience positive, les agences de Sarthe habitat vous accompagnent dans toutes vos démarches.

  • Définition de votre projet selon vos besoins et votre budget : nombre de pièces et de chambres, prix et secteur.
  • Proposition d’annonces immobilières avec visite accompagnée.
  • Recherche de financement avec nos partenaires professionnels.
  • Finalisation de l’achat : compromis et acte de vente chez l’un de nos notaires.